926 Beloit
Forest Park, IL
The Beloit Collection
Introducing The Beloit Collection, a boutique release of 10 luxury townhome residences by SKDesign Group, set in the heart of Forest Park.
Each home offers 3 bedrooms, 2.5 baths, ~2,300 SF + a den, an eat-in kitchen, and smart storage throughout. Interiors are finished with 9” wide-plank flooring, 9’ ceilings, a custom tri-color kitchen, and an LG appliance package, with curated stone, tile, and fixtures selected alongside Studio 41 and Elm Surfaces.
Exteriors feature Hardie siding, Rehau tilt-turn windows, multiple private outdoor spaces, and an attached 2-car garage. Steps from Field-Stevenson Elementary and the Forest Park Recreation Campus (tennis, pickleball, playgrounds, leagues, and more), with quick access to expressways and transit for an easy downtown commute.
Contact Alex Stoykov for details.
Photos
3D Walkthrough
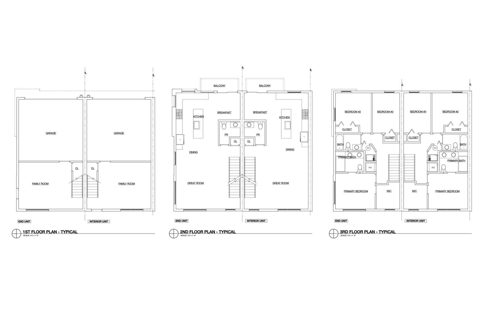
Floor Plan
Site Plan
Unit Finishes
The Beloit Collection pairs modern materials with durable, high-end selections throughout. Wide-plank flooring runs across the main living areas, kitchens feature sleek flat-panel cabinetry, Byron White quartz countertops, and a designer herringbone tile backsplash, complemented by a full LG appliance package. Bathrooms are finished with curated tile combinations, quartz vanity tops, and matte black fixtures and accessories for a clean, cohesive look across primary, guest, and powder baths. Quality details continue with Rehau tilt-turn windows and thoughtfully selected lighting, hardware, and plumbing fixtures throughout.
Location
Conveniently located across the street from Field-Stevenson Elementary School, blocks away from the Park District of Forest Park. This incredible park gives our boutique community access to tennis, pickleball, playgrounds, softball leagues, The Roos Recreation Center and so much more. This well-connected, suburban community offers tranquility away from busy living while being conveniently located near major expressways and public transport for quick access to Downtown Chicago.
Get In Touch
Interested in a private showing or want more details? Fill out the form below and we’ll reach out to schedule a tour and answer any questions.
Alex Stoykov, MBA
Luxury Real Estate Broker


